Trilocale in vendita

Mantova, Via Leopoldo Pilla - Castelnuovo
€ 145.000
3 locali 3 locali
100 Mq 100 Mq
1 bagno 1 bagno

Trilocale in vendita

Mantova, Via Leopoldo Pilla - Castelnuovo

Descrizione annuncio

MANTOVA-VENDESI

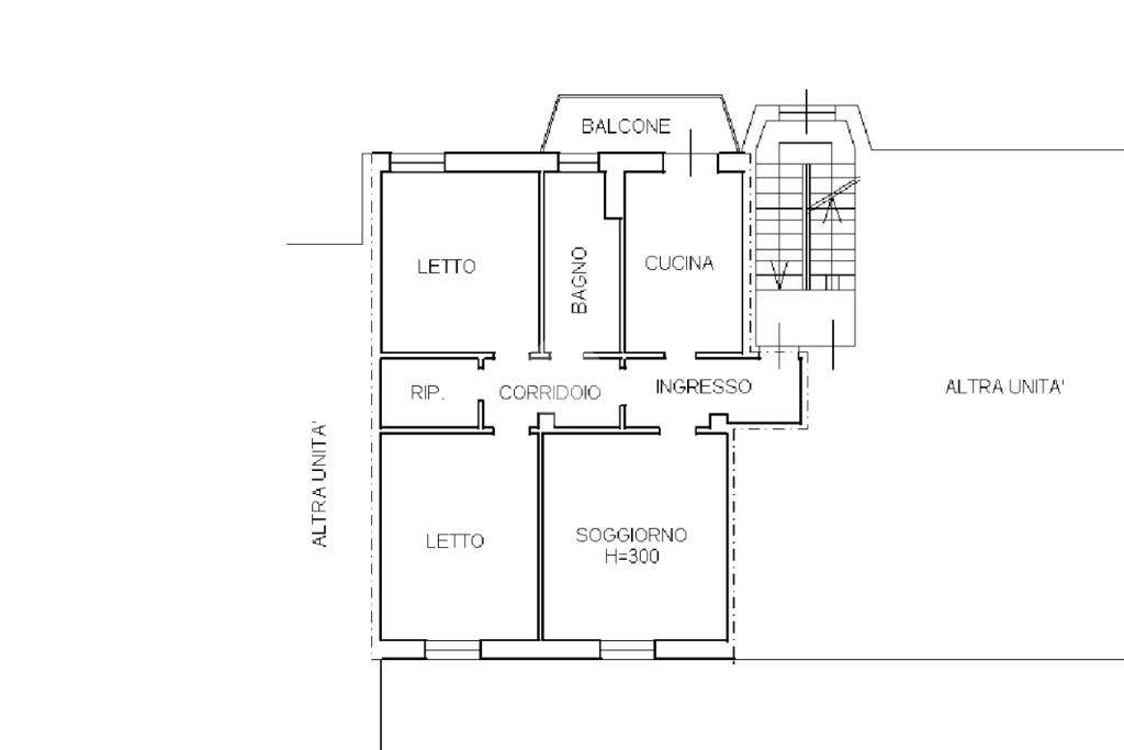
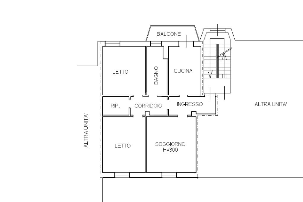
Nel cuore degli Angeli-Castelnuovo, nel comune di Mantova, è disponibile un appartamento in vendita che offre comfort e funzionalità. Situato al piano primo di un curato contesto ocndominiale con sole 6 unità abitative, l'immobile si estende su 100 mq e comprende tre locali ben distribuiti. L'appartamento è composto da due camere da letto entrambe matrimoniali , un bagno finestrato con box doccia e vasca, un soggiorno e una cucina, oltre a un balcone che offre uno spazio esterno privato. Completano la proprietà una cantina, un box auto e un posto auto condominiale. L'immobile, costruito nel 1967, è stato oggetto di una recente ristrutturazione nel 2024, che ha incluso il rifacimento del tetto, dei pavimenti e delle porte interne. Gli infissi in PVC con triplo vetro, installati nel 2020, garantiscono un ottimo isolamento termico e acustico. Gli impianti elettrici e idraulici sono stati aggiornati nel 2010. Il riscaldamento è autonomo e l'appartamento è dotato di aria condizionata con spilt in pompa di calore di ultima generazione regolabili anche da remoto. La caldaia è stata sostituita nel 2024 ed è a condensazione garantendo bassi consumi. La proprietà si affaccia su un giardino condominiale ben curato.

la proprietà si trova in Classe energetica D.

Contattaci ai nostri recapiti telefonici:

0376/1586614 - 3713351991

Per ulteriori soluzioni puoi visitare il nostro sito

Servizi per chi vende:
- VALUTAZIONE GRATUITA dell'immobile
- Analisi di provenienza
- Visure ipotecarie
- Visura catastale
- Pubblicità dell'immobile
- Rapidità nei tempi di vendita
- Incarico a procurare la vendita.

Servizi per chi acquista:
- Visura ipo-catastale
- Controllo documentale dell'immobile

Vuoi affittare il tuo immobile? Offriamo servizi esclusivi per tutelare il proprietario.

Veniteci a trovare in agenzia, siamo a Mantova in corso Garibaldi n°137 ed il nostro personale vi aiuterà a trovare l'immobile giusto per le vostre esigenze.

Le presenti informazioni e planimetrie sono indicative e non costituiscono elementi contrattuali.

Per motivi di privacy l'indirizzo e numero civico non corrispondono alla reale ubicazione dell'immobile ma si trova nelle immediate vicinanze.

Mostra tutto

Nelle vicinanze

Trasporto pubblico Trasporto pubblico
Mantova
Mantova
2,6 Km
Angeli 1° Maggio
Angeli 1° Maggio
210 m
Angeli Peep
Angeli Peep
420 m
Borgochiesanuova
Borgochiesanuova
1,9 Km
Ricariche auto elettriche Ricariche auto elettriche
Evway Mantova Pradella
2,5 Km
IperTosano Curtatone | EnelX
2,8 Km
Scuole Scuole
Scuole
40 m
IIS Pietro Antonio Strozzi - sede ITA di Mantova
1,1 Km
Scuola elementare Edmondo De Amicis
1,7 Km
Scuola dell'infanzia Collodi
1,7 Km
Istituto Superiore "Enrico Fermi"
2,0 Km
Farmacia Farmacia
Farmacia Due Pini
1,9 Km
Farmacia Comunale Gramsci
2,5 Km
Farmacia Sacri Vasi
2,7 Km
Farmacia
2,7 Km
Ospedali Ospedali
Villa Al Lago
1,6 Km
Clinica San Clemente
1,8 Km
R.S.A. Isabella d'Este - R.S.A. Luigi Bianchi
1,9 Km
Istituti Ospedalieri Carlo Poma
2,0 Km
Ospedali
2,0 Km
Supermercati Supermercati
Eurospin
1,0 Km
NaturaSi
1,1 Km
Lidl
1,2 Km
Famila
1,7 Km
Centro commerciale Quattro Venti
2,0 Km
Negozi Negozi
Loft Fashion Store
1,1 Km
Randon
2,6 Km
Bar Bar
Baraonda
1,2 Km
Bar
1,4 Km
Alessia
2,5 Km
abc
2,6 Km
Bar La Fenice
2,7 Km
Ristoranti Ristoranti
Osteria della Cheffa
140 m
Trattoria Isidora
230 m
Al Viandante
920 m
Trattoria Tana del Diavolo
1,1 Km
Da Vasco Steak House
1,1 Km
Mostra tutto

Caratteristiche

Rif.:
61175865
Piano:
1 di 3 (Piano basso)
Box:
1
Posti auto:
1
Balconi:
1
Camere da letto:
2
Mostra tutto
Prezzo Prezzo
€ 145.000
Rata mutuo Rata mutuo
€ 673 / mese
Spese annue Spese annue
€ 750
Proponi il tuo prezzoProponi il tuo prezzo

Classe Energetica

D
D
D
D
D
D
D
D
D
EP globale non rinnovabile:
154.11 kW h/m² anno
EP globale rinnovabile:
4.27 kW h/m² anno
EP invernale del fabbricato:
EP estiva del fabbricato:
Anno di costruzione:
1967
Riscaldamento:
Autonomo
Tipo impianto:
A radiatori
Tipo alimentazione:
Metano

Ti interessa visionare l'immobile?

Fissa un appuntamento  Fissa un appuntamento

Richiedi informazioni

Clicca su Leggi per aprire l'informativa
* Questi campi sono obbligatori

Calcola il tuo mutuo

Semplice e senza impegno
Anticipo

( % )
Mutuo

( % )

pochi semplici passi

inserisci i tuoi dati
Questionario completato
Grazie per aver richiesto un appuntamento senza impegno con un nostro Consulente del Credito e Assicurativo.

Hai inserito correttamente tutti i dati necessari e a breve riceverai una e-mail con un link da convalidare per inviare i tuoi dati.
Affiliato
Studio Mantova 1 Srl
Corso Garibaldi, 137 46100 Mantova (MN)

Il nostro staff


  • Alessandro Marotti
    Affiliato

  • Vittoria Mastruzzi
    Collaboratrice

  • Daniele Parente
    Affiliato

  • Andrea Stringhini
    Collaboratore
Corso Garibaldi, 137 46100 Mantova (MN)
Zona: Mantova
Mostra su mappa
Orari: dal lunedì al venerdì : 09:00- 12:30 e 14:30- 19:30sabato: 09:00-12:30
Affiliato
Studio Mantova 1 Srl
Corso Garibaldi, 137 46100 Mantova (MN)

2026 Tecnocasa Franchising S.p.A. - P. IVA 08365160152 - Via Monte Bianco 60/A 20089 Rozzano (MI). Ogni agenzia ha un proprio titolare ed è autonoma. Privacy policy | Policy utilizzo | Cookie policy