Multilocale in vendita

Mantova, Via Alessandro Cavriani - Centro
€ 280.000
6 locali 6 locali
200 Mq 200 Mq
2 bagni 2 bagni

Multilocale in vendita

Mantova, Via Alessandro Cavriani - Centro

Descrizione annuncio

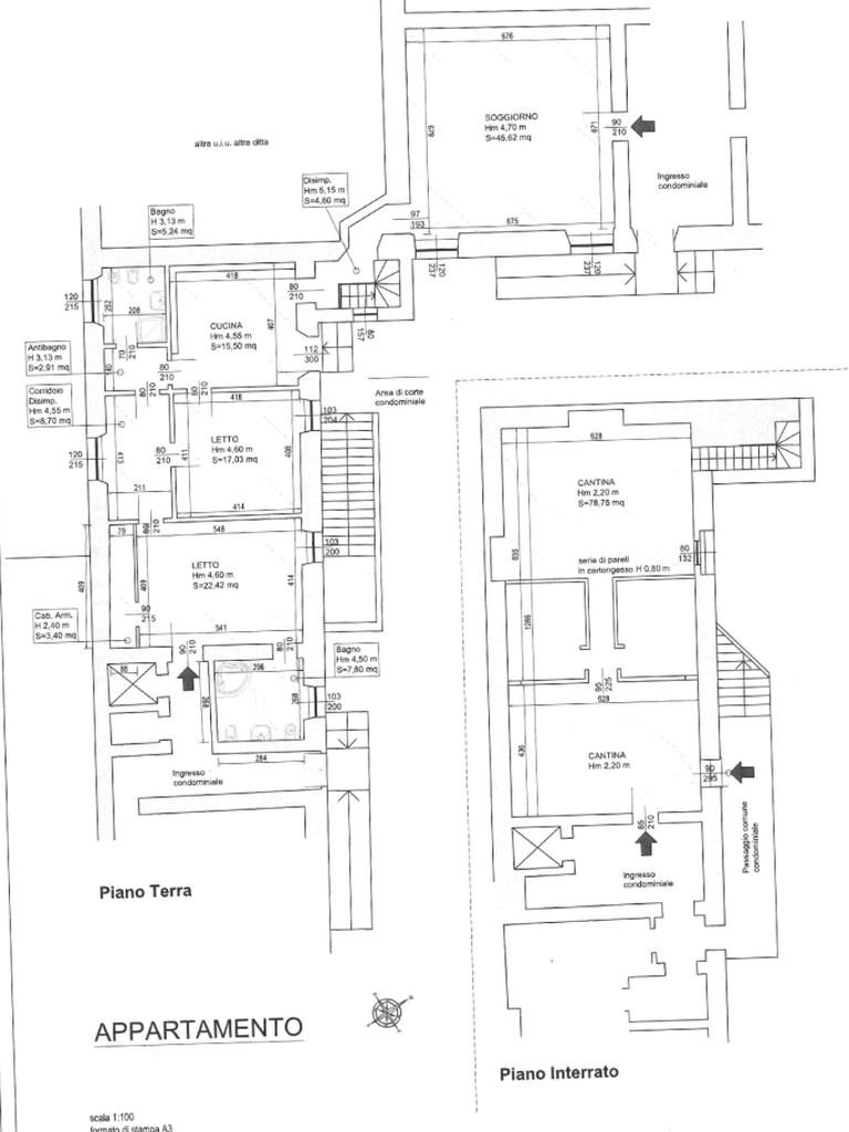
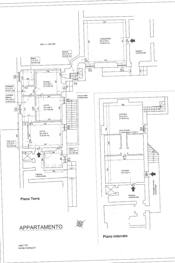
Nel cuore del centro storico di Mantova, proponiamo un affascinante immobile signorile risalente al 1800. Questa proprietà, di 200 mq, offre un ampio spazio suddiviso in sei locali, ideale per chi cerca una residenza di prestigio con un tocco di storia. Situato al piano basso, l'immobile conserva dettagli architettonici d'epoca che si fondono armoniosamente con le esigenze moderne. Gli ambienti spaziosi e ben distribuiti permettono una personalizzazione secondo le proprie esigenze, rendendolo adatto sia come abitazione principale che come investimento. La posizione centrale garantisce un facile accesso a tutti i servizi e alle attrazioni culturali che la città di Mantova offre. Un'opportunità unica per chi desidera vivere in un contesto storico senza rinunciare al comfort contemporaneo. L'immobile è corredato a box doppio e taverna.

Mostra tutto

Nelle vicinanze

Trasporto pubblico Trasporto pubblico
Mantova
Mantova
920 m
Sant’Antonio Mantovano
Sant’Antonio Mantovano
2,7 Km
Corso Vittorio Emanuele - Piazza Cavallotti
Corso Vittorio Emanuele - Piazza Cavallotti
740 m
Piazza Cavallotti
Piazza Cavallotti
770 m
Ricariche auto elettriche Ricariche auto elettriche
evway Corso della Libertà
820 m
evway Parcheggio Arche
900 m
Evway Mantova Pradella
1,1 Km
Evway Mantova Parcheggio Sparafucile
1,5 Km
evway Mantova Mozzarelli
1,9 Km
Scuole Scuole
Scuola elementare statale Pomponazzo
330 m
Scuola Media Leon Battista Alberti
450 m
Scuole
460 m
Politecnico di Milano - Sede di Mantova
460 m
Liceo Classico Virgilio
830 m
Farmacia Farmacia
Farmacia
310 m
Farmacia Cooperativa Mantovana
490 m
Farmacia San Giorgio
580 m
Farmacia San Carlo
670 m
Farmacia dr. Silvestri
720 m
Ospedali Ospedali
Poliambulatori - Asst Mantova
160 m
Neuropsichiatria infantile territoriale
1,4 Km
R.S.A. Isabella d'Este - R.S.A. Luigi Bianchi
1,8 Km
Villa Al Lago
1,9 Km
Istituti Ospedalieri Carlo Poma
2,5 Km
Supermercati Supermercati
Carrefour
800 m
Il Tagliere Gastronomia
990 m
Famila
1,4 Km
Coop
1,7 Km
Conad
1,7 Km
Negozi Negozi
Casa del Pane
490 m
Mango
590 m
Calzedonia
650 m
Host
650 m
Etre'
660 m
Bar Bar
Bar
480 m
Bar Gonzaga
560 m
Il gallone
570 m
Caffè La Pace
590 m
Lasagna
620 m
Ristoranti Ristoranti
Al Quadrato
330 m
L’ochina bianca
330 m
Aquila Nigra
480 m
La Porta Accanto
480 m
Osteria Le Quattro Tette
490 m
Mostra tutto

Caratteristiche

Rif.:
61147285
Piano:
5 di 5 con ascensore (Piano basso)
Box:
1
Camere da letto:
6
Arredamento:
Assente
Condizionamento:
Assente
Mostra tutto
Prezzo Prezzo
€ 280.000
Rata mutuo Rata mutuo
€ 1.330 / mese
Spese annue Spese annue
€ 600
Proponi il tuo prezzoProponi il tuo prezzo

Classe Energetica

G
G
G
G
G
G
G
G
G
EP globale non rinnovabile:
200.10 kW h/m² anno
EP globale rinnovabile:
200.10 kW h/m² anno
EP invernale del fabbricato:
EP estiva del fabbricato:
Anno di costruzione:
1800
Riscaldamento:
Autonomo
Tipo impianto:
A radiatori
Tipo alimentazione:
Metano

Ti interessa visionare l'immobile?

Fissa un appuntamento  Fissa un appuntamento

Richiedi informazioni

Clicca su Leggi per aprire l'informativa
* Questi campi sono obbligatori

Calcola il tuo mutuo

Semplice e senza impegno
Anticipo

( % )
Mutuo

( % )

pochi semplici passi

inserisci i tuoi dati
Questionario completato
Grazie per aver richiesto un appuntamento senza impegno con un nostro Consulente del Credito e Assicurativo.

Hai inserito correttamente tutti i dati necessari e a breve riceverai una e-mail con un link da convalidare per inviare i tuoi dati.
Affiliato
Studio Mantova 1 Srl
Corso Garibaldi, 137 46100 Mantova (MN)

Il nostro staff


  • Alessandro Marotti
    Affiliato

  • Vittoria Mastruzzi
    Collaboratrice

  • Daniele Parente
    Affiliato

  • Andrea Stringhini
    Collaboratore
Corso Garibaldi, 137 46100 Mantova (MN)
Zona: Mantova
Mostra su mappa
Orari: dal lunedì al venerdì : 09:00- 12:30 e 14:30- 19:30sabato: 09:00-12:30
Affiliato
Studio Mantova 1 Srl
Corso Garibaldi, 137 46100 Mantova (MN)

2026 Tecnocasa Franchising S.p.A. - P. IVA 08365160152 - Via Monte Bianco 60/A 20089 Rozzano (MI). Ogni agenzia ha un proprio titolare ed è autonoma. Privacy policy | Policy utilizzo | Cookie policy