Trilocale in vendita

Mantova, Via Carlo Cocastelli
€ 160.000
3 locali 3 locali
180 Mq 180 Mq
1 bagno 1 bagno

Trilocale in vendita

Mantova, Via Carlo Cocastelli

Descrizione annuncio

MANTOVA VENDESI

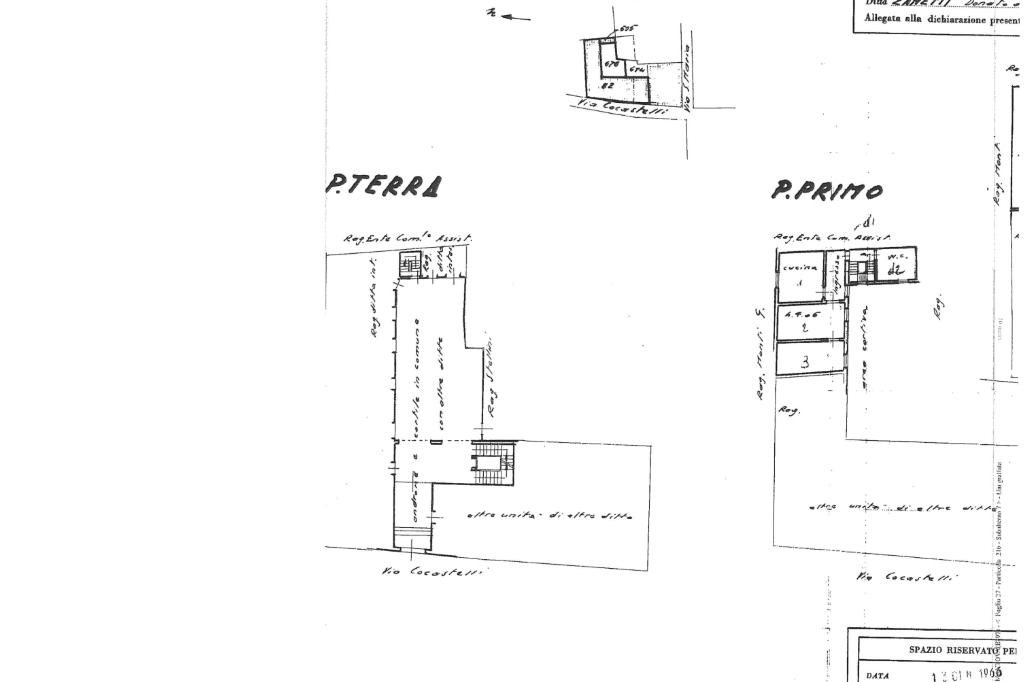
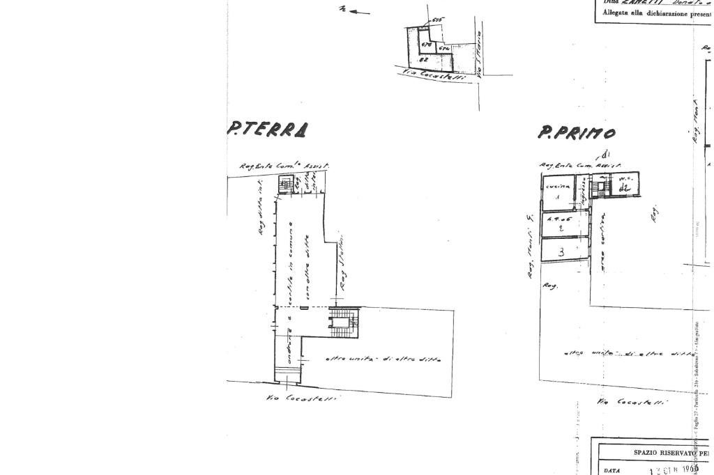
Nel cuore di Mantova, in una delle sue vie più affascinanti, è disponibile per la vendita una casa semindipendente di 180 mq, ideale per chi cerca un'abitazione che unisca comfort e indipendenza. Distribuita su più livelli, questa proprietà offre ampi spazi con tre locali, tra cui due camere da letto e una camera aggiuntiva, perfetta per essere adattata a studio o area relax. Costruita nel 1960 e ristrutturata nel 2017, la casa è dotata di aria condizionata e impianto di riscaldamento termo autonomo, garantendo un ambiente accogliente in ogni stagione. La possibilità di personalizzare gli interni secondo le proprie esigenze rende questa soluzione abitativa particolarmente interessante per chi desidera un tocco personale. Un'opportunità unica per vivere in una delle zone più belle di Mantova, con la comodità di tutti i servizi a portata di mano.

Contattaci ai nostri recapiti telefonici:

0376/1586614 - 3713351991

Per ulteriori soluzioni puoi visitare il nostro sito

Servizi per chi vende:
- VALUTAZIONE GRATUITA dell'immobile
- Analisi di provenienza
- Visure ipotecarie
- Visura catastale
- Pubblicità dell'immobile
- Rapidità nei tempi di vendita
- Incarico a procurare la vendita.

Servizi per chi acquista:
- Visura ipo-catastale
- Controllo documentale dell'immobile

Vuoi affittare il tuo immobile? Offriamo servizi esclusivi per tutelare il proprietario.

Veniteci a trovare in agenzia, siamo a Mantova in corso Garibaldi n°137 ed il nostro personale vi aiuterà a trovare l'immobile giusto per le vostre esigenze.

Le presenti informazioni e planimetrie sono indicative e non costituiscono elementi contrattuali.

Per motivi di privacy l'indirizzo e numero civico non corrispondono alla reale ubicazione dell'immobile ma si trova nelle immediate vicinanze.

Mostra tutto

Nelle vicinanze

Trasporto pubblico Trasporto pubblico
Mantova
Mantova
700 m
Sant’Antonio Mantovano
Sant’Antonio Mantovano
2,9 Km
Corso Vittorio Emanuele - Piazza Cavallotti
Corso Vittorio Emanuele - Piazza Cavallotti
500 m
Piazza Cavallotti
Piazza Cavallotti
530 m
Borgochiesanuova
Borgochiesanuova
3,0 Km
Ricariche auto elettriche Ricariche auto elettriche
evway Corso della Libertà
600 m
evway Parcheggio Arche
820 m
Evway Mantova Pradella
870 m
Evway Mantova Parcheggio Sparafucile
1,6 Km
evway Mantova Mozzarelli
1,7 Km
Scuole Scuole
Scuola elementare statale Pomponazzo
150 m
Politecnico di Milano - Sede di Mantova
220 m
Scuola Media Leon Battista Alberti
410 m
Scuole
430 m
Liceo Classico Virgilio
720 m
Farmacia Farmacia
Farmacia
120 m
Farmacia Cooperativa Mantovana
300 m
Farmacia San Carlo
460 m
Farmacia San Giorgio
480 m
Farmacia Al Moro
510 m
Ospedali Ospedali
Poliambulatori - Asst Mantova
250 m
Neuropsichiatria infantile territoriale
1,2 Km
R.S.A. Isabella d'Este - R.S.A. Luigi Bianchi
1,6 Km
Villa Al Lago
1,7 Km
Istituti Ospedalieri Carlo Poma
2,3 Km
Supermercati Supermercati
Carrefour
560 m
Il Tagliere Gastronomia
760 m
Coop
1,5 Km
Famila
1,5 Km
Conad
1,6 Km
Negozi Negozi
Casa del Pane
300 m
Intimissima
460 m
Lacoste
460 m
Etre'
460 m
KiKo
460 m
Bar Bar
Bar
290 m
Il gallone
440 m
Caffe Miro`
460 m
Bar Venezia caffè letterario
470 m
Caffè La Pace
480 m
Ristoranti Ristoranti
L’ochina bianca
110 m
Al Quadrato
330 m
Osteria Le Quattro Tette
370 m
Tiratappi
370 m
Piccola osteria Andes
390 m
Mostra tutto

Caratteristiche

Rif.:
61118210
Piano:
Su più livelli di 2
Totale piani:
2
Camere da letto:
2
Arredamento:
Assente
Condizionamento:
Autonomo
Mostra tutto
Prezzo Prezzo
€ 160.000
Rata mutuo Rata mutuo
€ 755 / mese
Spese annue Spese annue
€ 400
Proponi il tuo prezzoProponi il tuo prezzo
Immobile valutato con T·Valuta

Classe Energetica

G
G
G
G
G
G
G
G
G
EP globale non rinnovabile:
566.61 kW h/m² anno
EP globale rinnovabile:
2.31 kW h/m² anno
EP invernale del fabbricato:
EP estiva del fabbricato:
Anno di costruzione:
1960
Riscaldamento:
Autonomo
Tipo impianto:
A radiatori
Tipo alimentazione:
Metano

Ti interessa visionare l'immobile?

Fissa un appuntamento  Fissa un appuntamento

Richiedi informazioni

Clicca su Leggi per aprire l'informativa
* Questi campi sono obbligatori

Calcola il tuo mutuo

Semplice e senza impegno
Anticipo

( % )
Mutuo

( % )

pochi semplici passi

inserisci i tuoi dati
Questionario completato
Grazie per aver richiesto un appuntamento senza impegno con un nostro Consulente del Credito e Assicurativo.

Hai inserito correttamente tutti i dati necessari e a breve riceverai una e-mail con un link da convalidare per inviare i tuoi dati.
Affiliato
Studio Mantova 1 Srl
Corso Garibaldi, 137 46100 Mantova (MN)

Il nostro staff


  • Alessandro Marotti
    Affiliato

  • Vittoria Mastruzzi
    Collaboratrice

  • Daniele Parente
    Affiliato

  • Andrea Stringhini
    Collaboratore
Corso Garibaldi, 137 46100 Mantova (MN)
Zona: Mantova
Mostra su mappa
Orari: dal lunedì al venerdì : 09:00- 12:30 e 14:30- 19:30sabato: 09:00-12:30
Affiliato
Studio Mantova 1 Srl
Corso Garibaldi, 137 46100 Mantova (MN)

2025 Tecnocasa Franchising S.p.A. - P. IVA 08365160152 - Via Monte Bianco 60/A 20089 Rozzano (MI). Ogni agenzia ha un proprio titolare ed è autonoma. Privacy policy | Policy utilizzo | Cookie policy